【東京都大田区】~馬込駅徒歩1分!8帖超えのリビングのある中古分譲マンション~
価格2300万円




















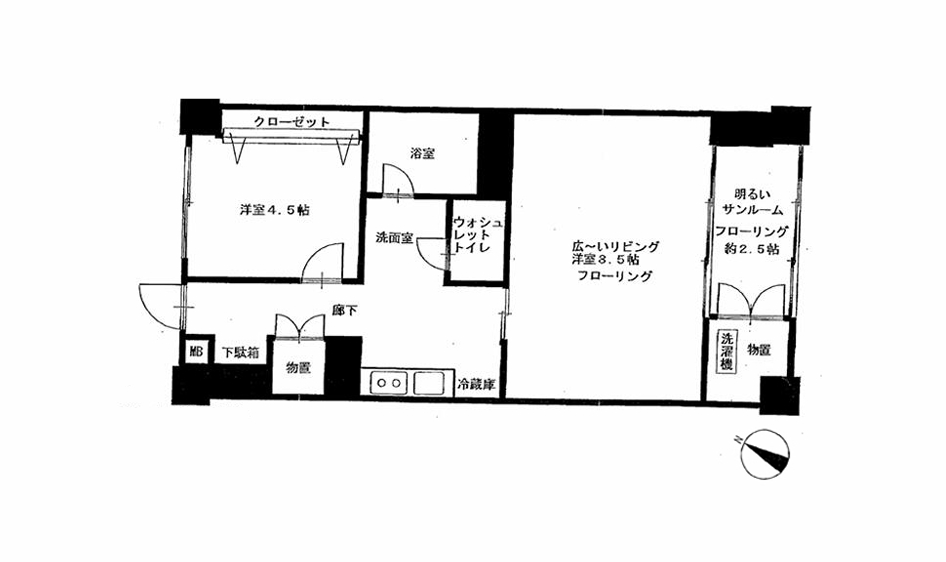
〇2DKの間取り〇中古マンション
【おすすめPoint!】
・都営浅草線最寄り駅まで徒歩1分の好立地!
・リビングが8.5帖の広々空間☆
・サンルーム付きだから雨の日も洗濯物が干せて便利✧
交通:都営浅草線「馬込」駅まで徒歩1分
所在地::東京都大田区南馬込1丁目2-12
販売価格:2,300万円(税込)
専有面積:43.24㎡(約13.08坪)(サンルーム4.56㎡含む)
間取り:2DK
部屋番号:404号室
構造: 鉄骨鉄筋コンクリート造地上10階建地下1階
用途地域:第一種住居地域、準住居地域
築年月:昭和50年3月
施工会社:鹿島建設株式会社
設備:エレベーター
総戸数:53戸(管理人室1戸含む)
管理会社:委託・日本ハウズイング株式会社
修繕積立金:8,300円
管理費:10,470円
土地権利:所有権
引渡:相談
取引態様:仲介
【おすすめPoint!】
・都営浅草線最寄り駅まで徒歩1分の好立地!
・リビングが8.5帖の広々空間☆
・サンルーム付きだから雨の日も洗濯物が干せて便利✧
交通:都営浅草線「馬込」駅まで徒歩1分
所在地::東京都大田区南馬込1丁目2-12
販売価格:2,300万円(税込)
専有面積:43.24㎡(約13.08坪)(サンルーム4.56㎡含む)
間取り:2DK
部屋番号:404号室
構造: 鉄骨鉄筋コンクリート造地上10階建地下1階
用途地域:第一種住居地域、準住居地域
築年月:昭和50年3月
施工会社:鹿島建設株式会社
設備:エレベーター
総戸数:53戸(管理人室1戸含む)
管理会社:委託・日本ハウズイング株式会社
修繕積立金:8,300円
管理費:10,470円
土地権利:所有権
引渡:相談
取引態様:仲介
ACCESSアクセス
OVERVIEW物件概要
| 場所 | 東京都大田区南馬込1丁目 |
|---|---|
| 延床面積 | 43.24㎡(約13.08坪) |
| 価格 | 2300万円 |
| 地目 | 宅地 |
| 構造 | 鉄骨鉄筋コンクリート造地上10階建地下1階 |
| 用途地域 | 第一種住居地域、準住居 |
| 設備 | エレベーター |
| 引渡時期 | 相談 |
CONTACTお問い合わせ
必要事項をご記入の上「個人情報の取り扱いに同意する」ボタンをチェックしていただき送信ください。
必須項目は、必ずご記入ください。